Geberit ProPlanner Software di progettazione per installatori
Progettazione semplice, precisa e rapida
Geberit ProPlanner è stato studiato appositamente per le esigenze di installatori e aziende di impianti idrosanitari che progettano impianti sanitari in modo indipendente.
I moduli di progettazione coprono diverse tecnologie idrosanitarie, dalla progettazione dei sistemi d'installazione al dimensionamento dei tubi e ai calcoli idraulici.
Non appena avete installato Geberit ProPlanner – tenendo conto dei requisiti di sistema – e vi siete registrati per la prima volta, riceverete una chiave di licenza, con la quale potrete utilizzare il modulo Sistemi d'installazione .
Per utilizzare i moduli dedicati al progetto schematico dei sistemi di tubazioni, al piano in dettaglio in 3D, allo scarico per tetto e allo scarico prefabbricato, è necessario partecipare a un corso di formazione sul software. Al termine della formazione, verrà rilasciata una licenza. Contattateci se siete interessati al corso ProPlanner.

Validi motivi per scegliere Geberit ProPlanner
Progettazione semplice
La creazione di disegni schematici fornisce un dimensionamento completo dei tubi e un estratto materiale per il progetto.
Calcoli precisi
I calcoli affidabili vengono eseguiti automaticamente sulla base del know-how di Geberit.
Facile da usare
L'interfaccia utente è intuitiva e facile da imparare.
Creazione rapida
I disegni possono essere creati rapidamente e i rapporti possono essere generati con un solo clic del mouse.
Moduli di progettazione disponibili
Sistemi di installazione
Il modulo consente una progettazione e una modellazione rapida, semplice e precisa dei sistemi di installazione.
Funzionalità:
- Progettazione di sistemi d'installazione
- Calcolo secondo le direttive e le prescrizioni Geberit
- Normative più recenti e prodotti Geberit integrati
- Emissione automatica di estratti materiale, liste dei costi di materiale e lunghezze di taglio dei tubi
- Emissione automatica di viste in pianta, prospetti e disegni di installazione
- Funzione di esportazione del piano in dettaglio 3D
- Interfaccia di esportazione CAD (Autodesk® RealDWG®)

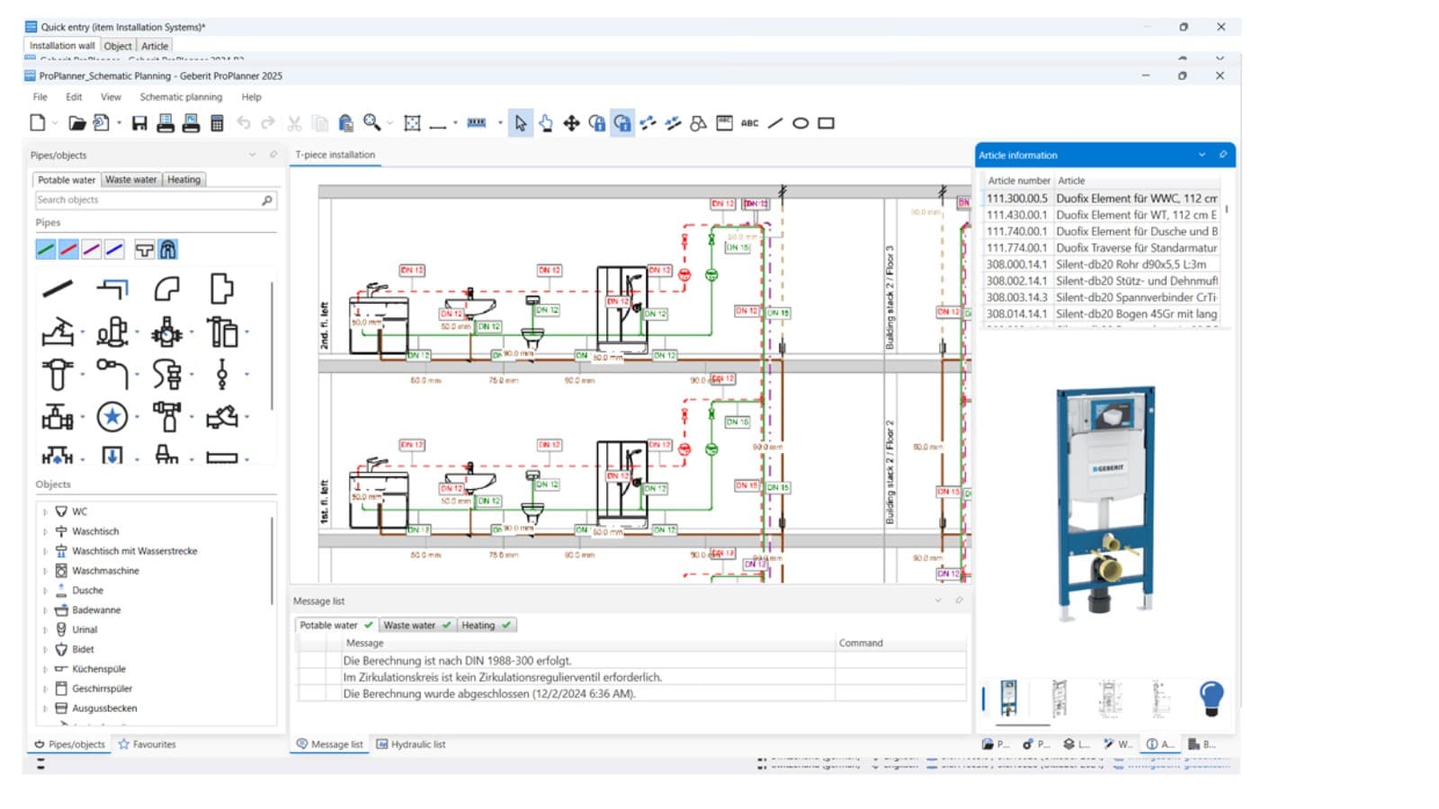
Progetto schematico
Il modulo consente di progettare sistemi di tubazioni sulla base di disegni dettagliati.
Funzionalità:
- Progettazione di sistemi per acqua potabile e di scarico
- Calcolo secondo gli standard specifici del paese
- Normative più recenti e prodotti Geberit integrati
- Elaborazione automatica di estratti materiale, liste di idraulica e di offerte
- Elaborazione automatica di schemi
- Interfaccia di esportazione CAD (Autodesk® RealDWG®)

Piano in dettaglio 3D
Il modulo consente una modellazione 3D completa degli apparecchi sanitari. Il software garantisce un design corretto.
Funzionalità:
- Progettazione di sistemi d'installazione e di scarico
- Progettazione possibile nella vista in pianta, nel prospetto e in 3D
- Calcolo secondo le direttive e le prescrizioni Geberit
- Normative più recenti, standard e prodotti Geberit integrati
- Emissione automatica di liste di materiali, di offerte e di taglio dei pezzi
- Emissione automatica di viste in pianta, prospetti, disegni 3D e disegni di installazione
- Importazione ed esportazione CAD (Autodesk® RealDWG®)

Scarico per tetti con Geberit Pluvia
Il modulo consente una progettazione affidabile del dimensionamento dei tubi per lo scarico per tetto e quindi un'idraulica ottimizzata.
Funzionalità:
- Progettazione isometrica dello scarico per tetto Geberit Pluvia
- Dimensionamento in base agli standard specifici del Paese o alle prescrizioni Geberit
- Normative più recenti, standard e prodotti Geberit integrati
- Elaborazione automatica di liste di materiali, di idraulica e di offerte
- Emissione automatica di disegni isometrici
- Interfacce di importazione ed esportazione CAD (Autodesk® RealDWG®)

Scarichi prefabbricati
Il modulo consente la progettazione dettagliata e la modellazione 3D di tubi e raccordi per i sistemi di scarico.
Funzionalità:
- Progettazione di sistemi di scarico
- Progettazione possibile nella vista in pianta, nel prospetto e in 3D
- Emissione automatica di estratti materiale e liste per il taglio di pezzi per la prefabbricazione di tubi
- Emissione automatica di viste in pianta, prospetti, disegni 3D e disegni di installazione
- Interfaccia di importazione ed esportazione CAD (Autodesk® RealDWG®)

Requisiti di sistema
Prima di scaricare il software di progettazione, verificate che i requisiti di sistema siano soddisfatti:
| Minimo | Raccomandato | |
|---|---|---|
| Processore | 1 GHz | 2.5 GHz |
| Memoria di lavoro | 4 GB | 16 GB |
| Spazio di archiviazione | 4 GB di spazio di archiviazione libero | 6 GB di spazio di archiviazione libero, SSD |
| Scheda grafica | Grafica integrata | Scheda grafica dedicata |
| Schermo | 1280 x 1024 | 1920 x 1080 |
| Sistema operativo | Versione desktop di Windows a 64 bit supportata da Microsoft | Ultima versione desktop di Windows a 64 bit |
| Servizi online | Collegamento a Internet Indirizzo e-mail | Collegamento a Internet Indirizzo e-mail |
Grazie alla licenza aziendale potete installare e attivare illimitatamente Geberit ProPlanner all'interno della vostra azienda. Il software è gratuito per gli apprendisti e per tutti gli istituti scolastici.
Se desiderate ordinare la licenza, contattateci.
Supporto Geberit ProPlanner (in lingua tedesca)
Telefono 055 221 68 80
proplanner.ch@geberit.com
Supporto Geberit ProPlanner (in lingua francese)
Telefono 021 654 99 88
proplanner.fr.ch@geberit.com
Corsi di formazione e manuale
Leggete il nostro manuale di formazione per familiarizzare con le funzioni di Geberit ProPlanner.
- Scaricate i nostri documenti formativi (in inglese).
- Date un'occhiata ai nostri video di formazione (in tedesco).
- Per utilizzare i moduli di Geberit ProPlanner in modo ancora più efficiente, offriamo seminari speciali sul software e corsi di formazione individuali.
- Registratevi per un corso di formazione.
Domande frequenti su Geberit ProPlanner
Posso esportare rapporti e disegni da Geberit ProPlanner?
Sì, il software consente di esportare rapporti dettagliati, estratti materiale e disegni in vari formati per la documentazione e la divulgazione.
Geberit ProPlanner contiene un database con i prodotti Geberit?
Sì. Geberit ProPlanner offre l'accesso a una banca dati aggiornata e completa di prodotti Geberit, comprese le specifiche tecniche e i dettagli di installazione.
Geberit ProPlanner è adatto anche a progetti di grandi dimensioni?
Sì. Il software è stato sviluppato in modo da consentire la creazione di progetti sanitari di tutte le dimensioni, dai piccoli progetti residenziali ai grandi progetti di costruzione a uso commerciale.




